How to Choose the Best UPVC Swing Doors: Features to Look For
Imagine standing at your front entrance during a harsh winter storm, feeling cold drafts seeping through gaps around your old door while your heating bills continue to climb. This common frustration affects countless homeowners who settled for substandard entrance solutions. Choosing the best UPVC Swing Doors requires understanding critical features that directly impact your home's comfort, security, and energy efficiency. This comprehensive guide reveals exactly what to look for when selecting UPVC Swing Doors that will protect your investment and enhance your daily living experience for decades to come.
Understanding UPVC Swing Door Construction and Materials

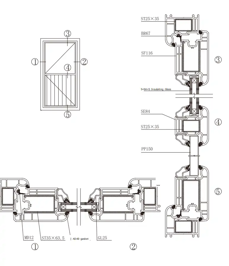
The foundation of any quality UPVC Swing Doors begins with understanding the material composition and construction methods that separate premium products from inferior alternatives. UPVC, or unplasticized polyvinyl chloride, represents a revolutionary building material specifically engineered for superior performance in residential and commercial applications. Unlike traditional materials that deteriorate over time, properly manufactured UPVC Swing Doors maintain their structural integrity and aesthetic appeal throughout their extended lifespan. Modern UPVC Swing Doors utilize multi-chamber profile systems that create exceptional thermal barriers within the door frame. These chambers function as insulating pockets, dramatically reducing heat transfer between interior and exterior environments. The profile thickness matters significantly, with premium manufacturers offering 70 Series profiles for standard applications and 80 Series profiles for enhanced performance requirements. Steel reinforcement integrated within these profiles adds crucial structural strength without compromising the material's natural insulating properties. This combination ensures your UPVC Swing Doors remain dimensionally stable regardless of temperature fluctuations or environmental stresses. The quality of raw materials determines longevity and performance outcomes. Reputable manufacturers source virgin UPVC compounds rather than recycled materials, ensuring consistent color stability and UV resistance throughout the product's lifetime. Surface treatments applied during manufacturing protect against fading, chalking, and discoloration even under intense sunlight exposure. When evaluating UPVC Swing Doors, examine the frame thickness carefully, as panels measuring between 2.3 to 3 millimeters provide optimal resistance against impact damage while effectively dampening exterior noise transmission.
Profile Design and Thermal Efficiency
Advanced profile designs incorporate strategic chamber placement that maximizes thermal performance without adding unnecessary weight or complexity to UPVC Swing Doors. Each chamber creates an air pocket that interrupts thermal conductivity, forcing heat to travel through multiple barriers before reaching the opposite surface. This principle explains why multi-chamber profiles consistently outperform single-chamber alternatives in energy efficiency testing. Premium UPVC Swing Doors feature profiles with five or more chambers, delivering U-values well below regulatory requirements while providing measurable reductions in heating and cooling expenses. The thermal break technology integrated into quality UPVC Swing Doors further enhances insulation capabilities by preventing cold transfer through metal reinforcement components. Without proper thermal breaks, steel reinforcement can create thermal bridges that undermine the insulating properties of surrounding UPVC material. Modern manufacturing techniques position thermal barriers strategically throughout the profile cross-section, ensuring complete isolation between interior and exterior temperature zones. This attention to thermal engineering translates directly into comfortable indoor environments and lower utility bills throughout every season.
Essential Security Features in UPVC Swing Doors

Security considerations rank among the most critical factors when selecting UPVC Swing Doors for any property. Modern entrance solutions must provide robust protection against forced entry attempts while maintaining ease of operation for legitimate users. The security profile of UPVC Swing Doors depends on multiple integrated components working together as a comprehensive system rather than relying on any single feature. Multi-point locking mechanisms represent the cornerstone of effective UPVC Swing Doors security systems. These advanced locking arrangements engage the door panel at multiple locations simultaneously, typically including three to five locking points distributed along the door's height. When users turn the key or handle, locking bolts extend into corresponding strike plates positioned throughout the door frame, creating a secure connection that resists prying or forced entry attempts. This distributed locking approach provides exponentially greater security than traditional single-point locks found on older door systems. The steel reinforcement within quality UPVC Swing Doors serves dual purposes, providing both structural rigidity and security enhancement. Heavy-gauge steel cores running through the door frame and panel create a formidable barrier against physical attacks. Hinges and lock mechanisms weld directly to this steel reinforcement, ensuring that security hardware maintains its position and function even under significant stress. The combination of reinforced frames and multi-point locking creates UPVC Swing Doors that meet or exceed stringent security standards required for residential and commercial applications.
Hardware Quality and Tamper Resistance

Premium hardware components distinguish superior UPVC Swing Doors from budget alternatives. High-security cylinders featuring anti-snap, anti-drill, and anti-pick technologies provide essential protection against sophisticated entry techniques. Modern lock cylinders incorporate hardened steel pins and specialized mechanisms that resist manipulation attempts while maintaining smooth operation for authorized users. Quality manufacturers offer cylinders tested to recognized security standards, providing documented assurance of their protective capabilities. External hardware elements require equal attention during UPVC Swing Doors selection. Lever handles constructed from durable materials like stainless steel or reinforced aluminum resist weathering and maintain functionality throughout extensive use cycles. Security hinges with concealed pins prevent removal from the exterior side, eliminating a potential vulnerability in outward-opening configurations. Some advanced UPVC Swing Doors incorporate hinge guards that cover the hinge gap, preventing tools from accessing the hinge barrel even if pins were somehow compromised.
Weather Performance and Sealing Systems

Environmental protection capabilities separate exceptional UPVC Swing Doors from mediocre alternatives. Effective weather sealing systems must address multiple challenges simultaneously, including air infiltration, water penetration, and wind resistance. The sealing strategy employed in UPVC Swing Doors typically involves multiple layers of specialized gaskets and weatherstripping positioned throughout the frame and panel interface. Primary seals contact directly with the door panel when closed, creating the first barrier against weather intrusion. These seals utilize compression techniques that increase sealing pressure as the door latches, ensuring consistent contact even as materials naturally age over time. Secondary seals provide backup protection and accommodate minor panel deflection under wind loading. The redundant sealing approach ensures UPVC Swing Doors maintain weather protection even if one seal component experiences degradation or damage. Quality weatherstripping materials resist UV degradation, temperature extremes, and physical compression without losing their elastic properties. Premium UPVC Swing Doors incorporate EPDM rubber seals specifically formulated for long-term exterior exposure. These materials maintain flexibility across temperature ranges spanning from extreme cold to intense heat, ensuring consistent sealing performance regardless of seasonal conditions. The seal geometry matters significantly, with bulb-type and fin-type configurations each offering advantages for specific applications and exposure conditions.
Drainage and Moisture Management
Effective water management systems integrated into UPVC Swing Doors prevent moisture accumulation that could compromise performance or lead to interior damage. Threshold designs incorporate drainage channels that collect any water penetrating outer defenses and direct it safely back to the exterior. Weep holes positioned strategically within the frame allow trapped moisture to escape rather than accumulating within the door assembly. This drainage infrastructure ensures UPVC Swing Doors perform reliably even during severe weather events involving wind-driven rain. The threshold component deserves particular attention during UPVC Swing Doors evaluation. Low-profile thresholds enhance accessibility while maintaining weather protection, particularly important for residential applications where mobility considerations exist. Adjustable threshold systems allow installers to fine-tune the seal compression and ensure optimal contact with door sweeps throughout the panel's full travel. Premium UPVC Swing Doors feature thermally broken threshold designs that prevent cold transfer while maintaining structural support and weather sealing capabilities.
Glazing Options and Energy Performance

Glass specifications significantly influence the overall performance characteristics of UPVC Swing Doors. Modern glazing technologies offer remarkable advances in thermal insulation, solar control, and acoustic dampening compared to traditional single-pane installations. Understanding available glazing options enables informed decisions that align with specific performance priorities and climatic conditions. Double glazing represents the minimum standard for contemporary UPVC Swing Doors, providing substantial improvements over single-pane alternatives. Typical configurations include two glass panes separated by an air space ranging from 16 to 20 millimeters. This insulating cavity creates a thermal barrier that dramatically reduces heat transfer while maintaining visual clarity. Common specifications like 5+18A+5 or 5+20A+5 indicate glass thickness and air gap dimensions, with larger air spaces generally providing enhanced insulation performance within practical limits. Low-emissivity coatings applied to glass surfaces further enhance the thermal performance of UPVC Swing Doors. These microscopically thin metallic layers reflect infrared radiation while allowing visible light transmission, effectively creating a one-way thermal mirror. During winter conditions, low-E coatings reflect interior heat back into living spaces, reducing heating requirements. In summer months, selective low-E formulations can reflect exterior solar heat while admitting daylight, helping maintain comfortable interior temperatures without excessive air conditioning demands.
Advanced Glazing Technologies
Triple glazing offers premium thermal performance for UPVC Swing Doors installed in extreme climates or where maximum energy efficiency justifies additional investment. Three glass panes create two insulating cavities, providing exceptional resistance to heat transfer. While triple glazing adds weight and cost compared to double-glazed alternatives, the energy savings and comfort improvements often justify the premium in regions experiencing harsh winters or extreme temperature variations. Gas fills within the insulating cavities enhance thermal performance beyond air-filled alternatives. Argon gas, commonly used in quality UPVC Swing Doors, offers lower thermal conductivity than air due to its higher molecular weight. Krypton gas provides even better insulating properties but commands premium pricing due to its scarcity. These inert gases remain stable within properly sealed glazing units throughout the door's service life, maintaining thermal performance without requiring maintenance or replacement. Laminated glass options add security and safety benefits to UPVC Swing Doors beyond standard annealed glass. These constructions bond multiple glass layers with tough plastic interlayers that hold fragments together if breakage occurs. Laminated glazing resists penetration even after suffering impact damage, providing valuable time for security responses while protecting occupants from glass injury. Acoustic laminated glass formulations incorporate specialized interlayers that dampen sound transmission, particularly beneficial for UPVC Swing Doors facing busy streets or noisy environments.
Customization and Aesthetic Considerations

Design flexibility ensures UPVC Swing Doors complement existing architectural styles while meeting functional requirements. Modern manufacturing capabilities offer extensive customization options that accommodate diverse aesthetic preferences without compromising performance characteristics. Understanding available customization possibilities enables selections that enhance property value and personal satisfaction. Color selection has evolved far beyond basic white finishes that once dominated UPVC Swing Doors markets. Contemporary options include solid colors spanning neutral tones to bold accent shades, wood-grain finishes replicating natural timber species, and metallic effects mimicking aluminum or steel appearances. High-quality color finishes utilize co-extrusion or lamination techniques that integrate color throughout the surface layer rather than applying thin paint coatings. This manufacturing approach ensures color stability and eliminates peeling or flaking concerns that plague inferior finishing methods. Wood-grain textures add warmth and traditional character to UPVC Swing Doors while retaining all the practical advantages of synthetic materials. Advanced surface treatments replicate the visual depth and tactile qualities of genuine timber, including grain patterns, knots, and color variations found in popular species like oak, mahogany, and walnut. These textured finishes resist fading and weathering that would require regular maintenance on actual wood doors, providing authentic appearance without corresponding upkeep demands.
Glass Design and Decorative Options
Decorative glass treatments personalize UPVC Swing Doors while addressing privacy requirements and aesthetic preferences. Frosted or obscured glass maintains natural light transmission while preventing clear views through the door, ideal for entrance applications where privacy matters. Textured glass surfaces create visual interest through patterns ranging from subtle textures to bold geometric designs. Beveled glass edges add elegant detail that catches and reflects light, creating dynamic visual effects throughout the day. Leaded or divided light patterns recreate traditional multi-pane appearances within modern insulated glass units. These designs maintain thermal efficiency while providing classic aesthetic character compatible with period architecture or traditional design preferences. Contemporary interpretations offer simplified geometric patterns suitable for modern UPVC Swing Doors while still providing visual interest and architectural detail. Glass options can incorporate family crests, house numbers, or custom artistic elements that create truly unique entrance statements. Hardware selection offers final opportunities for personalizing UPVC Swing Doors. Lever handle styles range from contemporary minimalist designs to ornate traditional patterns, available in multiple finish options including polished chrome, brushed nickel, aged bronze, and matte black. Door viewers, mail slots, and decorative hinges add functional and visual elements that complete the door's character. Coordinating hardware finishes throughout the entrance system creates cohesive design that enhances overall presentation and property appeal.
Conclusion
Selecting superior UPVC Swing Doors requires evaluating construction quality, security features, weather performance, glazing specifications, and aesthetic options that align with your specific needs and priorities.
Cooperate With Hunan Haolv Building Materials Co., Ltd.

Hunan Haolv Building Materials Co., Ltd. stands as a premier China UPVC Swing Doors manufacturer with 18 years of specialized experience delivering exceptional entrance solutions worldwide. As a trusted China UPVC Swing Doors supplier, our advanced manufacturing facilities integrate precision CNC equipment and automated assembly systems ensuring consistent quality across every wholesale UPVC Swing Doors order. Our China UPVC Swing Doors factory maintains ISO-certified quality standards throughout production, from material selection through final inspection, guaranteeing international compliance and superior performance. We offer competitive UPVC Swing Doors price structures with transparent UPVC Swing Doors Pricelist options alongside comprehensive Customized UPVC Swing Doors services accommodating unique architectural requirements. Request your UPVC Swing Doors quotation and discover our Bulk UPVC Swing Doors advantages including one-stop product support, free technical consultation, complimentary sample shipping, and dedicated project follow-up services. Contact our professional team at kristin@haolvwindows.com to discuss your requirements and experience the quality difference that 30+ countries worldwide trust for their building projects.
References
1. British Standards Institution. "BS 6375-1:2015 Performance of Windows and Doors - Part 1: Classification for Weathertightness and Guidance on Selection and Specification." BSI Standards Publication, 2015.
2. Anderson, Bruce and Malcolm Wells. "Passive Solar Energy: The Homeowner's Guide to Natural Heating and Cooling." Brick House Publishing Company, Third Edition, 2015.
3. Glass and Glazing Federation. "GGF Technical Manual: Glazing Installation Standards for UPVC Windows and Doors." Glass and Glazing Federation Technical Committee, 2023.
4. National Fenestration Rating Council. "NFRC 100-2020: Procedure for Determining Fenestration Product U-factors." National Fenestration Rating Council Technical Standards, 2020.
5. Lstiburek, Joseph. "Builder's Guide to Cold Climates: Design and Construction Details for Energy Efficiency and Comfort." Building Science Press, Revised Edition, 2018.



